abonnement Unibet Coolblue Bitvavo
pi_54602752
Beste Fok!kers,

Een week of 2 geleden hebben wij onze voortuin veranderd. We hebben de bestrating er nu in, de beplanting (heggetjes, 2 leibomen) komt over 1,5 week. Heel leuk natuurlijk!
Maar als er geen probleem zou zijn zou ik niet posten dus....daar komt ie.

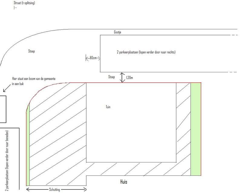
Even een situatieschets om alles duidelijker te maken. Hij is wel wat groot uitgevallen maar hopelijk wel duidelijk:



De bestrating is het gedeelte met de schuine strepen. Links is de oprit, onderaan een pad voor het huis en aan de rechterkant een pad naar de voordeur.
In het midden is het nu tuin (alleen zwarte grond) waar nog beplanting komt. In de groene stukken links en rechts komt een heg te staan als afscheiding. De rode strepen rondom is de afscheiding tussen onze grond en die van gemeente of buren.

Het probleem is dat buren regelmatig parkeren op de stoep, recht voor onze (nieuwe) oprit.
Dit is tevens een bocht, omdat hier de straat eindigt in een t-splitsing.
De stoep is wel best breed op dat stuk (3m), er kan dus makkelijk een auto staan.
Het is alleen geen officiele parkeerplaats, die liggen er aan de rechterkant naast. Bovendien is het dus binnen 5m van een kruising. Onze straat is ook een straat van rechts waardoor de gehele situatie wat onoverzichtelijk wordt als iemand daar parkeert. Er is hier ook geen stoeprand, alles ligt op dezelfde hoogte.

We hebben net nieuwe buren die nog aan het verbouwen zijn. Geen probleem, dat kwamen ze ook netjes van te voren melden. Aardige mensen van onze leeftijd ( 25-30 jaar). Wel andere types dan wij, maar dat wil nog niet zoveel zeggen. Die mensen brengen natuurlijk een hoop vrienden mee, die dan voor onze nieuwe oprit parkeren als ze mee komen klussen.
Laatst 1 van die vrienden ook aangesproken, dat wij er niet van gediend zijn dat zij daar parkeren.
Hij stond dan ook wel erg lomp: namelijk op het plaatje gezien linksbovenin de hoek, met z'n ene band op onze oprit, met z'n andere band tegen de omheining van de gemeenteboom en met z'n motorkap boven de plaats van onze toekomstige heg. Dat sloeg dus alles.
Het 'fijne' is dat wij op dit moment geen auto hebben. Die komt er zodra ik een baan gevonden heb. Ik denk namelijk dat als er regelmatig een auto geparkeerd staat (onze auto dus, op die oprit) dat mensen er dan minder snel parkeren.Maar ja, of wij daar nu een oprit hebben of niet, dat maakt in mijn ogen niets uit: parkeren mag daar dus toch niet.

Het gaat mij nu even om het volgende:
1. Hoe vertel ik het beste tegen mijn buren dat ik hier niet van gediend ben? Ik heb geen zin in ruzie of gezeik, het moet alleen wel duidelijk zijn. Om nou meteen te gaan dreigen met wegsleeptoestanden gaat me nu wat te ver, dat kan altijd nog.
2. In hoeverre sta ik in mijn recht? Wij hebben de gemeente niet gevraagd om recht van overpad op dat stuk stoep, omdat er daar toch niemand mag parkeren. Er is dus ook geen stoeprand oid, wij kunnen dus zo onze oprit oprijden. Oprit of niet, parkeren mag er toch niet.
3. Ik zou de gemeente in kunnen schakelen om duidelijk te maken dat er daar niet geparkeerd mag worden. Hiermee kan ik mezelf wel in m'n vingers snijden, want de gemeente kan er dan een paar paaltjes neerzetten en dan kan ik zelf mijn oprit ook niet meer op.

Ik ben benieuwd hoe andere mensen dit zouden aanpakken in mijn situatie. Alvast bedankt voor de reacties!
  woensdag 14 november 2007 @ 15:44:24 #2
69415 Buschetta
Jouw IP toevallig ?
pi_54602916
uitrit op een hoek is zowheezo niet toegestaan dacht ik.
pi_54602985
1) Gewoon het erover hebben. Als ze het na een paar keer nog niet doen, kun je maatregelen nemen, maar doe dat dus niet te snel. Enkel als ze bewust je oprit blokkeren.

2) Volgens mij geldt hier gewoon de regel; voor een uitrit mag je niet parkeren. Weet niet hoe dat wettelijk zit.

3) Paaltjes zullen ze heus niet zomaar neerzetten. Maak gewoon duidelijk wat het probleem is en vraag wat ze er aan kunnen doen.

Ehm... ok
  woensdag 14 november 2007 @ 15:48:48 #4
25865 Bill_E
vijf plus 98!
pi_54603040
gast .. zeik niet zo je hebt er geen auto staan je hebt er geen last van...
pi_54603043
quote:
Op woensdag 14 november 2007 15:44 schreef Buschetta het volgende:
uitrit op een hoek is zowheezo niet toegestaan dacht ik.
Oh? Dat is nieuw voor mij. Ik rijd op veel plekken en ben regelmatig situaties tegengekomen dat er een uitrit op de hoek van de straat zit (soms ook dwars op de hoek (dus op 45’)).
Ehm... ok
pi_54603062
Banden leksteken....
Gone.... :')
pi_54603072
quote:
Op woensdag 14 november 2007 15:48 schreef Bill_E het volgende:
gast .. zeik niet zo je hebt er geen auto staan je hebt er geen last van...
Je hoeft niet te reageren, maar als je dat doet, lees dan eerst de OP ff
Ehm... ok
pi_54603324
Je schrijft dat het een nieuwe uitrit is. Bedoel je hiermee dat er geen uitrit was en dat je een dele van je tuin het opgeofferd om een parkeerplek te maken? Als dat het geval is, heb je het probleem dat je niet zomaar een uitrit mag maken. Op geen enkele plek. Daar moet je een vergunning voor aanvragen.

Ligt de oprit er rechtmatig, dan kun je de nieuwe buren erop aanspreken. Zelf zou ik het echter nu nog niet zo zwaar oppakken. Maak een praatje met de mensen en laat weten dat je als je een auto hebt er een probleem van gaat maken. Mogelijk is tegen die tijd de stroom bezoek zo ver afgenomen dat het toch geen probleem meer is.
  woensdag 14 november 2007 @ 16:05:01 #9
3011 E.T.
hormonaal stuiterballetje
pi_54603456
quote:
Op woensdag 14 november 2007 15:44 schreef Buschetta het volgende:
uitrit op een hoek is zowheezo niet toegestaan dacht ik.
mijn ouderlijk huis had een oprit in exact dezelfde situatie als TS, gewoon door de gemeente zo opgeleverd.

onzin dus
I can only please one person per day. Today is not your day. Tomorrow isn't looking too good either.
pi_54603471
quote:
Op woensdag 14 november 2007 15:48 schreef Bill_E het volgende:
gast .. zeik niet zo je hebt er geen auto staan je hebt er geen last van...
Ga me niet vertellen dat je überhaupt normaal vindt om op andermans grond te parkeren.

TS, ik zou werk maken van een erfafscheidinkje tussen oprit en stoep.
Je kunt natuurlijk altijd je buren gewoon aanspreken, ze hebben maar rekening met jouw grondgebied te houden. Zo simpel is het.
Sic transit gloria mundi
--- --- --- --- --- --- ---
I drink, therefore I am!
pi_54603531
Er mag niemand voor je oprit staan.
Zie artikel 24 van het RVV, de tekst vind je hier: http://www.tdekkers.nl/rvv.htm#art_24
Vroeger, toen schepen nog van hout en mannen van staal waren....
pi_54603603
quote:
Op woensdag 14 november 2007 16:05 schreef ElectricEye het volgende:

[..]

Ga me niet vertellen dat je überhaupt normaal vindt om op andermans grond te parkeren.
De stoep is van de gemeente, niet van TS.
quote:
Op woensdag 14 november 2007 16:08 schreef staaltje het volgende:
Er mag niemand voor je oprit staan.
Zie artikel 24 van het RVV, de tekst vind je hier: http://www.tdekkers.nl/rvv.htm#art_24
En dan maar hopen dat je buren niet na gaan kijken of jouw opritje qua vergunningen wel geregeld is.
quote:
Hoi, het maakt me nu niet zoveel uit dat er mensen voor m'n deur op de stoep parkeren. Maar als ik een auto heb, zou ik wel graag gebruik willen maken van m'n opritje. Zou je je bezoek willen vragen om dan ergens anders te parkeren? Tot die tijd geen probleem hoor!
pi_54603638
quote:
Op woensdag 14 november 2007 16:08 schreef staaltje het volgende:
Er mag niemand voor je oprit staan parkeren.
Zie artikel 24 van het RVV, de tekst vind je hier: http://www.tdekkers.nl/rvv.htm#art_24
Ehm... ok
pi_54604267
quote:
Op woensdag 14 november 2007 16:12 schreef Frumzel het volgende:

[..]

Dank. Helemaal correct Als je dan wetboeken gaat quoten moet je het natuurlijk wel goed doen!
Vroeger, toen schepen nog van hout en mannen van staal waren....
  woensdag 14 november 2007 @ 16:55:54 #15
3542 Gia
User under construction
pi_54604868
Je mag ook niet op het trottoir parkeren, tenzij er een parkeervak is aangegeven.

Dus TS staat sowieso in zijn/haar recht.

Echter, vind ik de oprit wel wat ongelukkig liggen. Als je uit de straat, links van het huis komt, hoe wil je dan die oprit oprijden? Dan moet je flink manoevreren, lijkt me. Maar goed, ik neem aan dat TS een vergunning heeft aangevraagd voor deze oprit....
pi_54605134
k

[ Bericht 99% gewijzigd door sander89 op 14-11-2007 17:08:58 ]
............................
pi_54605203
Je studeert toch psychologie, dan moet jij weten hoe die mensen denken
pi_54605470
je mag zelfs niet voor je eigen inrit parkeren.... ook al is die van jezelf... ja ja, ben met theorie bezig voor rijbewijs....
  woensdag 14 november 2007 @ 17:31:48 #19
45722 Dromer
Zo veel letters Zo weinig ruim
pi_54605631
quote:
Op woensdag 14 november 2007 15:58 schreef deom het volgende:
Je schrijft dat het een nieuwe uitrit is. Bedoel je hiermee dat er geen uitrit was en dat je een dele van je tuin het opgeofferd om een parkeerplek te maken? Als dat het geval is, heb je het probleem dat je niet zomaar een uitrit mag maken. Op geen enkele plek. Daar moet je een vergunning voor aanvragen.

Ligt de oprit er rechtmatig, dan kun je de nieuwe buren erop aanspreken. Zelf zou ik het echter nu nog niet zo zwaar oppakken. Maak een praatje met de mensen en laat weten dat je als je een auto hebt er een probleem van gaat maken. Mogelijk is tegen die tijd de stroom bezoek zo ver afgenomen dat het toch geen probleem meer is.
Inderdaad. Er staat nieuwe oprit. Is die met toestemming/vergunning van de gemeente aangelegd en is de stoep op die plek ook officieel verlaagd? Zoniet heb je waarschijnlijk inderdaad pech aangezien je niet zomaar opritten mag gaan maken en gebruiken.
I am just a dreamer, but you are just a dream
  woensdag 14 november 2007 @ 17:47:25 #20
4089 BE
Gewoon gelukkig!
pi_54605945
Ik zou idd eerst even uitzoeken of je wel zomaar zelf een oprit mag maken.

En als je dan al met je buren wil gaan praten zou ik de woorden 'niet gediend zijn van' nog even weg laten. Ik vind dat namelijk gelijk al heel hoog van de toren blazend klinken.
Je kan toch gewoon zeggen dat je niet van je oprit gebruik kan maken doordat zij daar parkeren. Of ze daar rekening mee willen houden en daar niet meer willen parkeren.

Maar eerst eens zorgen dat je zeker weet dat je in je recht staat vwb de oprit. Als de gemeente zegt 'je hebt helemaal geen toestemming voor die oprit' heb je geen poot om op te staan.
***
pi_54606116
quote:
Op woensdag 14 november 2007 16:55 schreef Gia het volgende:
Je mag ook niet op het trottoir parkeren, tenzij er een parkeervak is aangegeven.

Dus TS staat sowieso in zijn/haar recht.

Echter, vind ik de oprit wel wat ongelukkig liggen. Als je uit de straat, links van het huis komt, hoe wil je dan die oprit oprijden? Dan moet je flink manoevreren, lijkt me. Maar goed, ik neem aan dat TS een vergunning heeft aangevraagd voor deze oprit....
Achteruit. Ideale dronkenmansstand-plaats
Ehm... ok
pi_54609666
quote:
Op woensdag 14 november 2007 17:47 schreef Brighteyes het volgende:
Ik zou idd eerst even uitzoeken of je wel zomaar zelf een oprit mag maken.
Nee, mag niet zomaar. Je hebt een uitritvergunning nodig. Er wordt dan gekeken naar verkersveiligheid. Overigens zijn er ook nogal wat situaties waar van de voortuin geen parkeerplek gemaakt mag worden (van de gemeente).

Op de stoep parkeren mag overigens ook niet (normaal gesproken dan, er zijn misschien wel uitzonderingen op).

[ Bericht 14% gewijzigd door #ANONIEM op 14-11-2007 20:18:41 ]
pi_54610513
quote:
Op woensdag 14 november 2007 20:16 schreef Wombcat het volgende:

[..]

Nee, mag niet zomaar. Je hebt een uitritvergunning nodig. Er wordt dan gekeken naar verkersveiligheid. Overigens zijn er ook nogal wat situaties waar van de voortuin geen parkeerplek gemaakt mag worden (van de gemeente).

Op de stoep parkeren mag overigens ook niet (normaal gesproken dan, er zijn misschien wel uitzonderingen op).
Ik denk dat het eerst belangrijk is om te kijken waarover we het hier hebben. Hebben we het over een stoep, of over een uitrit. Dat bepaald voor een heel groot deel de uitkomst van de discussie.

Zoals het nu geformuleerd staat in de startpost heb ik het idee dat het een stoep is. In dat geval zou ik heel hard mijn mond houden, hopen dat er nooit iemand gaat zeuren als ik over de stoep mijn tuin in rij en de buren te vriend houden.
pi_54611240
pi_54613951
Ik zou sowieso de gemeente niet wijzer maken dan ze zijn, wat niet weet wat niet deert....

Wat betreft dat parkeren, als ze op een gegeven moment zien dat jij een auto hebt die op je oprit staat zullen ze echt niet meer hun auto ervoor parkeren, dus denk dat dat probleem zich vanzelf op lost. Zou er als ik jouw was in dit stadium gewoon geen woorden aan vuil maken...
pi_54618994
Denk toch eens na. Je kunt wel een parkeerplaats naast je huis maken maar dit geeft je niet het recht om deze als in-en uitrit te gebruiken, daar zul je echt een vergunning voor nodig hebben. En die geeft de gemeente niet (verkeersveiligheid). Jammer joh
  donderdag 15 november 2007 @ 09:31:48 #27
65960 sanger
|-|-|-|-|-|-|-|-|-|-|-|-|-|-|
pi_54619249
quote:
Op donderdag 15 november 2007 09:15 schreef Pegasus_rules het volgende:
Denk toch eens na. Je kunt wel een parkeerplaats naast je huis maken maar dit geeft je niet het recht om deze als in-en uitrit te gebruiken, daar zul je echt een vergunning voor nodig hebben. En die geeft de gemeente niet (verkeersveiligheid). Jammer joh
De ervaring leert anders. In ons geval is de vergunning zonder morren toegekend.
Everything you want is on the other side of fear.
Ik ben niet onhandelbaar, ik ben gewoon een grote uitdaging.
  donderdag 15 november 2007 @ 09:33:39 #28
65960 sanger
|-|-|-|-|-|-|-|-|-|-|-|-|-|-|
pi_54619283
Ik zou de buren indd een keer vriendelijk vragen of ze voortaan niet meer voor de "oprit" willen parkeren. Ze zullen zelf niet bij de gemeente informeren, ze parkeren immers zelf ook op de stoep

Vervolgens zou ik het bij de gemeente in orde maken
Everything you want is on the other side of fear.
Ik ben niet onhandelbaar, ik ben gewoon een grote uitdaging.
pi_54623328
quote:
Op donderdag 15 november 2007 09:31 schreef sanger het volgende:

[..]

De ervaring leert anders. In ons geval is de vergunning zonder morren toegekend.
Vriend van mij heeft samen met een aantal anderen in zijn straat toestemming gevraagd om van de voortuin een oprit/parkeerplaats te maken omdat ze daar een ernstig parkeerprobleem hebben in de straat. Dat is keihard geweigerd. Dus het is niet per definitie zo dat TS zomaar die vergunning zou krijgen.
Was dus wel handig geweest om daar even achteraan te gaan.
Neemt niet weg dat de buurman natuurlijk niet op de stoep mag parkeren.
Maar asl TS nu naar de gemeente stapt heeft ie dus kans dat ie te horen krijgt dat ie uberhaupt z´n eigen auto niet in z´n tuin mag parkeren.
A mind with a heart of it's own
pi_54623502
Parkeren doe je in parkeervakken, dus op een stoep parkeren ookal heeft hij geen hoge trottoir randen mag gewoon niet. Dus gewoon even vragen of dit na hun drukke verbouwperiode niet meer voorkomt.

Dat jij de stoep gebruikt om je eigen tuin te bereiken is eigenlijk op het randje naar mijn mening.

Hoe krijg je het trouwens voor mekaar zo'n tuin + huis te hebben zonder baan
pi_54623547
quote:
Op donderdag 15 november 2007 12:54 schreef Noway666 het volgende:
Dat jij de stoep gebruikt om je eigen tuin te bereiken is eigenlijk op het randje naar mijn mening.
Dat is niet op het randje, het mag niet
A mind with a heart of it's own
  donderdag 15 november 2007 @ 13:18:56 #32
48546 Shinadul
vidi, vici, veni
pi_54623974
quote:
Op donderdag 15 november 2007 09:15 schreef Pegasus_rules het volgende:
Denk toch eens na. Je kunt wel een parkeerplaats naast je huis maken maar dit geeft je niet het recht om deze als in-en uitrit te gebruiken, daar zul je echt een vergunning voor nodig hebben. En die geeft de gemeente niet (verkeersveiligheid). Jammer joh
Mijn oprit is precies zoals op de tekening is aangegeven. Ik mag dit van de gemeente Almere niet eens veranderen ondanks dat ik nu 2x moet steken om mijn oprit op te komen.

De kruising is gelukkig niet hetzelfde, bij mij is het een 4-weg ipv T-splitsing dat scheelt wel iets.
pi_54624146
quote:
Op donderdag 15 november 2007 13:18 schreef Shinadul het volgende:

[..]

Mijn oprit is precies zoals op de tekening is aangegeven. Ik mag dit van de gemeente Almere niet eens veranderen ondanks dat ik nu 2x moet steken om mijn oprit op te komen.

De kruising is gelukkig niet hetzelfde, bij mij is het een 4-weg ipv T-splitsing dat scheelt wel iets.
Bij jou is het dus al zo bepaald in het bestemmingsplan.
TS wijzigt eigenhandig de situatie. Dat mag niet.
A mind with a heart of it's own
pi_54624657
Auto mag sowieso niet binnen 5 meter van een hoek van een straat geparkeerd worden,
auto mag niet op de stoep geparkeerd worden (ook niet met paar wielen). Stoep is voor voetgangers bedoeld. Je mag enkel over de stoep rijden om op je oprit te komen. Maar dus ook niet half op de stoep, half op de oprit parkeren.
En auto mag sowieso ook niet voor een uitrit geparkeerd worden.
Helemaal formeel gezien mag je zelf ook dus niet voor je eigen uitrit staan. Politie/parkeerwachters kunnen niet zien of dat jouw auto is die daar staat of niet. Maar in ieder geval genoeg regeltjes waardoor die ander daar niet mag staan.
Dat je zelf geen auto hebt, en wel of geen toestemming hebt om daar een oprit te hebben, verandert hier natuurlijk niets aan.
Op dinsdag 16 maart 2010 18:45 schreef henrydg het volgende:
Wat is er mis met de Prius?
[ afbeelding ]
Ik vind 't een hele mooie auto.
  donderdag 15 november 2007 @ 14:06:23 #35
48546 Shinadul
vidi, vici, veni
pi_54625104
quote:
Op donderdag 15 november 2007 13:25 schreef DrMarten het volgende:

[..]

Bij jou is het dus al zo bepaald in het bestemmingsplan.
TS wijzigt eigenhandig de situatie. Dat mag niet.
Of je leest de quote van waar ik op reageer ook. Op verkeersveiligheid dus.
pi_54629773
quote:
Op donderdag 15 november 2007 14:06 schreef Shinadul het volgende:

[..]

Of je leest de quote van waar ik op reageer ook. Op verkeersveiligheid dus.
Bestemmingsplan is wel degelijk van invloed. Als het in het bestemmingsplan als tuin is aangemerkt, mag je er in het algemeen niet parkeren. Dan mag je er dus ook niet eigenhandig een parkeervak van maken. Je moet dan vrijstelling van het bestemmingsplan vragen. En dan gaat de gemeente beoordelen of dat kan. Daarbij kijken ze ook naar de verkeersveiligheid. En dat er in de gemeente Almere zulke situaties zijn, betekent niet automatisch dat de gemeente waar TS woont dit ook zal toestaan. De specifieke situatie speelt een rol daarbij.
  donderdag 15 november 2007 @ 17:18:07 #37
3542 Gia
User under construction
pi_54629962
Toch wel interessant om te weten of TS wel of geen vergunning had.

Hier op de hoek hebben ze ook een nieuwe tuin en oprit (aan zijkant) gemaakt. Pal naast de straat. Er is nog geen strookje stoep over. Vind dat ook zo raar. Als wij met een kruiwagen of groene container naar voren willen, moeten we óf 2 x oversteken, óf over de straat lopen.
pi_54632215
quote:
Op donderdag 15 november 2007 17:18 schreef Gia het volgende:
Toch wel interessant om te weten of TS wel of geen vergunning had.

Hier op de hoek hebben ze ook een nieuwe tuin en oprit (aan zijkant) gemaakt. Pal naast de straat. Er is nog geen strookje stoep over. Vind dat ook zo raar. Als wij met een kruiwagen of groene container naar voren willen, moeten we óf 2 x oversteken, óf over de straat lopen.
Hebben ze dat wel op eigen terrein gedaan dan?
Je mag natuurlijk niet zomaar openbaar gebied bij je eigen tuin betrekken.
pi_54633249
quote:
Op donderdag 15 november 2007 17:10 schreef Wombcat het volgende:

[..]

Bestemmingsplan is wel degelijk van invloed. Als het in het bestemmingsplan als tuin is aangemerkt, mag je er in het algemeen niet parkeren. Dan mag je er dus ook niet eigenhandig een parkeervak van maken. Je moet dan vrijstelling van het bestemmingsplan vragen. En dan gaat de gemeente beoordelen of dat kan. Daarbij kijken ze ook naar de verkeersveiligheid. En dat er in de gemeente Almere zulke situaties zijn, betekent niet automatisch dat de gemeente waar TS woont dit ook zal toestaan. De specifieke situatie speelt een rol daarbij.
Dat soort dingen moet je de gemeente ook helemaal niet melden. Gewoon doen en niks laten weten. Dan komt de gemeente er na een paar jaar zelf wel een keer achter, kan je alsnog een vergunning aanvragen. Kans dat je die dan krijgt is best reëel en zo niet dan ben je iig al weer een hele tijd verder....
pi_54633524
quote:
Op donderdag 15 november 2007 19:53 schreef Accordtje het volgende:

[..]

Dat soort dingen moet je de gemeente ook helemaal niet melden. Gewoon doen en niks laten weten. Dan komt de gemeente er na een paar jaar zelf wel een keer achter, kan je alsnog een vergunning aanvragen. Kans dat je die dan krijgt is best reëel en zo niet dan ben je iig al weer een hele tijd verder....
Op zich kan ik een heel eind met je meegaan, maar dat kan alleen als de TS niet bij de buren gaat klagen over oneigelijk gebruik van de stoep. Gelijke monikken, gelijke kappen dus. Of allemaal op de stoep of allemaal niet.
pi_54633770
Is TS dood (gestoken) ofzo?
Misschien een burenruzie gehad, omdat er een auto voor ze uitrit stond terwijl die geen auto heeft
............................
pi_54633826
quote:
Op donderdag 15 november 2007 20:18 schreef sander89 het volgende:
Is TS dood (gestoken) ofzo?
Misschien een burenruzie gehad, omdat er een auto voor ze uitrit stond terwijl die geen auto heeft
Ik denk dat de TS de parkeerplek aan het herindelen is.
pi_54634149
quote:
Op donderdag 15 november 2007 20:08 schreef deom het volgende:

[..]

Op zich kan ik een heel eind met je meegaan, maar dat kan alleen als de TS niet bij de buren gaat klagen over oneigelijk gebruik van de stoep. Gelijke monikken, gelijke kappen dus. Of allemaal op de stoep of allemaal niet.
Ja dat vind ik ook wel eigenlijk. En ik denk zelfs dat wanneer hij zijn auto op z'n oprit parkeert dat de buren daar niet eens meer voor parkeren, die zien dan ook wel dat hij dan niet weg kan. Dus zoals ik al zei lost dat probleem zich waarschijnlijk vanzelf op zodra die auto er is. Dus ik zou het allemaal gewoon ff laten zoals het is nu als ik TS was...
pi_54634528
- Prive gegevens op verzoek van de poster weggehaald. -

[ Bericht 91% gewijzigd door Sander op 19-05-2011 20:46:15 ]
Zerg schreef:
1/1 is 1. 2/2 is 2. Basisschool breuken.
pi_54634652
quote:
Op donderdag 15 november 2007 19:53 schreef Accordtje het volgende:

[..]

Dat soort dingen moet je de gemeente ook helemaal niet melden. Gewoon doen en niks laten weten. Dan komt de gemeente er na een paar jaar zelf wel een keer achter, kan je alsnog een vergunning aanvragen. Kans dat je die dan krijgt is best reëel en zo niet dan ben je iig al weer een hele tijd verder....
In principe maakt het niet uit hoe lang die plek er al ligt bij de beoordeling door de gemeente.
pi_54642711
wat ik al zei: Het doet er niet toe of TS een vergunning heeft en wat het bestemmingsplan is.
Die auto mag sowieso niet binnen 5 meter van een hoek geparkeerd staan, en al helemaal niet op de stoep. Al zou TS de oprit bebouwen, dan mag die auto er nog steeds niet staan.
Op dinsdag 16 maart 2010 18:45 schreef henrydg het volgende:
Wat is er mis met de Prius?
[ afbeelding ]
Ik vind 't een hele mooie auto.
  vrijdag 16 november 2007 @ 12:16:20 #47
3542 Gia
User under construction
pi_54647501
quote:
Op donderdag 15 november 2007 19:08 schreef Wombcat het volgende:

[..]

Hebben ze dat wel op eigen terrein gedaan dan?
Je mag natuurlijk niet zomaar openbaar gebied bij je eigen tuin betrekken.
Weet ik niet. Het was een hoekhuis van een rij. In dat pand heeft een winkel gezeten. Het terrein ernaast werd gebruikt voor laden en lossen. Dit is nu compleet bij het huis getrokken en tuin van gemaakt, met achterin een grote dubbele poort met oprit. Die oprit is dus tegen de brandgang gelegen, dwars op het huis, niet in het verlengde dus. Ik heb daar op zich niet zo´n problemen mee, maar vind het wel raar, dat mensen nu met hun container, kruiwagen whatever, over de straat moeten. Aan de overkant is wel stoep. Je kunt dus oversteken met je kruiwagen, 10 meter lopen over de stoep en dan weer oversteken naar de stoep voor de huizen.

Maar goed, ga daar niks over zeggen, maar ik ben wel benieuwd of je zoiets zomaar kunt doen, zonder vergunning. Dus daarom mijn vraag aan TS.
pi_54653866
Is dit weer zo'n topic waarin de TS nooit meer wat laat horen?
pi_54655232
quote:
Op vrijdag 16 november 2007 08:17 schreef Walter81 het volgende:
wat ik al zei: Het doet er niet toe of TS een vergunning heeft en wat het bestemmingsplan is.
Die auto mag sowieso niet binnen 5 meter van een hoek geparkeerd staan, en al helemaal niet op de stoep. Al zou TS de oprit bebouwen, dan mag die auto er nog steeds niet staan.
Hee mensen,

Sorry voor de late reactie!
Ik kan er eerlijk over zijn: er is geen vergunning aangevraagd. Komt gedeeltelijk omdat ik hier eens in de buurt rondgekeken heb en (zelfgemaakte) parkeerplaatsen op eigen grond zag, die er niet kunnen komen met een vergunning. Parkeerplaatsen waar half een parkeerplaats van de gemeente voor ligt bijvoorbeeld.
Het andere gedeelte had bijvoorbeeld hiermee te maken: Een achterbuurman van mij maakt zelfs gebruik van een stuk grond van mijn buren (is niet anders uit te leggen) om op een oprit te komen van hem, ook op zijn grond. Dat mag al helemaal niet, maar die klojo maakt er makkelijk gebruik van dat wij niet voor onze garagedeuren mogen parkeren. Alhoewel, dat stuk is eigen grond (4m lang). Volgens mij mag ik er dan wel op parkeren, maar de auto staat dan al snel een stukkie op de stoep. Dat schiet dus niet op.

Het ging mij om bovenstaande, reactie van Walter81: namelijk, de buren mogen er toch niet parkeren, of ik er nu een oprit heb of niet. Dat boeit verder niet. Het boeit dus ook niet of ik er een vergunning voor heb.
De tuin is in totaal 10,40m breed en 4m diep (op het stuk van de oprit 5m diep). Het is dus nogal een plak en ik wilde er minder onderhoud aan hebben dan dat ik had. Dus een hoop bestraten. De plek waar de oprit ligt is expres gekozen. Wij zien die hoek vanuit ons huis wat slechter, bovendien mag er op dat stuk stoep toch al niemand parkeren.
Ik weet niet meer wie zei dat ik beter niet kan zeggen 'dat ik er niet van gediend ben dat mensen daar parkeren'. Nee, zo reageer ik niet snel. Ik zou eerder gewoon vragen of die mensen er rekening mee willen houden dat blabla... Het kwam dan ook omdat die mensen hun auto half op mijn grond hadden staan. Dan ben ik er dus niet van gediend en zeg ik ze dat ook zo. Zo brutaal als zij dus zijn om op mijn grond te parkeren, ben ik dat ook tegen hen in mijn uitingen.

Ik snap ook wel dat ik nu reacties ga krijgen als 'geen vergunning dan ook geen recht'. Daar gaat het ook niet om, het gaat erom dat mensen er tóch niet mogen parkeren, oprit of niet.
Ik weet nu in ieder geval genoeg, ben ook blij met alle reacties!
Enne, ik woon samen dus vriendlief betaalt nu de vaste lasten. Als ik weer een baan heb, neem ik die weer over.
Waarschijnlijk lost het probleem zich vanaf morgen sneller op dan gedacht: we hebben een auto op het oog en gaan morgen kijken/proefrijden.
pi_54655456
quote:
Op vrijdag 16 november 2007 17:31 schreef Ikook het volgende:

[..]

Ik snap ook wel dat ik nu reacties ga krijgen als 'geen vergunning dan ook geen recht'. Daar gaat het ook niet om, het gaat erom dat mensen er tóch niet mogen parkeren, oprit of niet.
Het punt is een beetje dat men er inderdaad niet mag parkeren, maar je mag ook niet over de stoep rijden om op je parkeerplek te komen. De kans is groot dat niemand er over gaat zeuren, maar dat hangt natuurlijk ook af van de stelling die je zelf inneemt. Bedenk immers goed dat de buren er belang bij kunnen krijgen dat jij geen gebruik mag maken van je parkeerplek. Tegenwoordig zijn er voldoende anonieme tiplijnen.

Overigens wordt bij ons ieder jaar met een helicopter overgevlogen om foto's te maken. Zo stond ons nieuwe, vergunningsvrije, schuurtje ineens wel op de aangifte van de OZB. Er is dus een kleine kans dat de gemeente alsnog moeilijk gaat doen.
abonnement Unibet Coolblue Bitvavo
Forum Opties
Forumhop:
Hop naar:
(afkorting, bv 'KLB')