abonnement Unibet Coolblue Bitvavo
pi_219572162
Hallo allen, ik hoop met dit topic nieuwe/andere inzichten te krijgen voor de indeling van onze nieuwbouwwoning. Ik lees altijd graag de topics over interieur, wonen en klussen, maar heb nog niet het plaatje gevonden wat ik zocht.
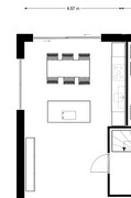
Onze nieuwbouwwoning zal een woonkamer van zo'n12 meter lang hebben waarvan 4 x 8 meter voor tussenstuk en keuken samen. Hiervan willen we de achterste 4 bij 4 voor de keuken gebruiken. Er komt een wand van 6 kasten (dus 3.60 m) in een nis naast die 4 bij 4, de 4 keer 4 kunnen we dus opvullen zoals we willen. We willen zowel een kookeiland als een losse eettafel.Dus (liefst) geen eettafel vast aan een kookeiland.
Gebruikelijk is het kookeiland evenwijdig aan de keukenwand en dan de eettafel in het tussenstuk. Echter bevinden zich aan twee zijden van het keukendeel ramen en zouden we daarom daar graag de eettafel willen zetten.
Ik heb nu het kookeiland evenwijdig aan de eettafel getekend, maar dan staat deze dwars op de keuken en belemmert dit het zicht vanuit het zitgedeelte op de achtertuin.
Ik heb eraan gedacht om de keuken wat naar beneden te verplaatsen zodat het kookeiland weer evenwijdig aan de keukenwand kan lopen. Dan komt er achter de keuken meer ruimte vrij voor een eettafel. Maar of ik dat vanuit de bouw nog geregeld krijg is nog maar de vraag.
Willen jullie eens meedenken? Hoe zouden jullie dit doen? Ik hoop dat het plaatsen van een plattegrondje lukt. https://postimg.cc/BtxphrgS]
pi_219573501
Is die rechthoek in je eiland je kookplaat?
And the young, they can lose hope cause they can't see beyond today,. ..
The wisdom that the old can't give away
  dinsdag 23 december 2025 @ 23:20:41 #3
63594 Lienekien
Sunshower kisses...
pi_219573945
Is het kookeiland je enige aanrecht?
The love you take is equal to the love you make.
pi_219574169
Ah, ik was onduidelijk. Met keukenwand bedoel ik niet een gehele wand met hoge kasten. Het worden waarschijnlijk twee blokken tot aan het plafond en 4 lage blokken, waarvan 1 x spoelbak. Dus dan blijven er drie blokken aanrecht over. En dan een kookeiland. De rechthoek is niet per se de plek van de kookplaat, meer om te laten zien dat het een kookeiland betreft. Maar het zou ook wel een werkeiland kunnen worden. En dan zowel spoelen als koken aan de lange wand. We hebben niet per se behoefte aan een groot eiland. Maar gezien de grootte van de kamer moet het niet te ielig worden, denk ik.
Ook nog belangrijk: er komen geen zitplaatsen aan het eiland.
  dinsdag 23 december 2025 @ 23:52:40 #5
63594 Lienekien
Sunshower kisses...
pi_219574185
Ik zou dat hele kookeiland schrappen.
The love you take is equal to the love you make.
  woensdag 24 december 2025 @ 00:05:26 #6
476022 PzKpfw
Devon 'No Limits'
pi_219574240
Of zet je eettafel met de kopse kant tegen het kookeiland aan.
Als iedereen aan zichzelf denkt wordt er aan iedereen gedacht.
Op 't randje en erover.
Op fietsen zonder bende kwam'm zie schooieren um spek
pi_219574292
Kun je er niet een schiereiland van maken? Dat je het eiland zoals het nu staat tegen de rest van de keuken schuift.
And the young, they can lose hope cause they can't see beyond today,. ..
The wisdom that the old can't give away
pi_219574315
Zonder kookeiland wordt het werkvlak maar 1,20 m. Dat is te weinig. En de kamer is erg ruim. Het voorste deel is 4 m diep en 8 m breed.

@PzKpfw: Dat is ook een optie.

Het lastige is: als er eenmaal gekozen is voor een eiland dan zitten we daar aan vast. Aan het eiland en aan de plek.

Luxeproblemen _O-
  woensdag 24 december 2025 @ 00:30:11 #9
63594 Lienekien
Sunshower kisses...
pi_219574334
Dan moet je loslaten dat je vanuit de kamer goed zicht op de tuin wil houden. Dat eiland gaat hoe dan ook als een massief blok in je zicht staan.
The love you take is equal to the love you make.
pi_219574375
En als je het zo plaatst ga je of koken met je rug naar de eettafel of met je rug naar een grote open ruimte achter je, en de woonkamer denk ik. Dat voelt niet fijn.
And the young, they can lose hope cause they can't see beyond today,. ..
The wisdom that the old can't give away
pi_219576117
Nee, klopt miss_sly. En het is ook zo'n vaste sta-in-de-weg.

Ik zie dat er ook werkeilanden op wielen bestaan. Ik denk eraan spoel en kook aan de wand te doen. En dan een verplaatsbaar smal/ondiep werkeiland. Geeft meer flexibiliteit, zitten we niet aan een vaste indeling vast.
Aan de wand ging ik uit van 6 blokken van 60, maar dat kunnen er natuurlijk 6,5 (incl apothekerskast heet dat?) worden of wel 6 maar dan met breder fornuis.
  woensdag 24 december 2025 @ 11:22:39 #12
63594 Lienekien
Sunshower kisses...
pi_219576154
Zijn er voor het verplaatsbare werkeiland dan ten minste twee logische plekken?
The love you take is equal to the love you make.
pi_219576231
quote:
1s.gif Op dinsdag 23 december 2025 23:52 schreef Lienekien het volgende:
Ik zou dat hele kookeiland schrappen.
Dit dus, dit gaat niet werken zo.
Het is er te smal.
1/10 Van de rappers dankt zijn bestaan in Amerika aan de Nederlanders die zijn voorouders met een cruiseschip uit hun hongerige landen ophaalde om te werken op prachtige plantages.
"Oorlog is de overtreffende trap van concurrentie."
  woensdag 24 december 2025 @ 11:55:31 #14
359712 GrumpyFish
ga je mee zwemmen?
pi_219576381
Kookeiland kwartslag draaien, eettafel in het verlengde van het kookeiland zetten.
It ain't what you don't know that gets you into trouble. It's what you know for sure that just ain't so - Mark Twain
pi_219576794
Zoals in de openingspost aangegeven wil ik met de aannemer overleggen of de keuken verplaatst kan worden (op de tekening naar onderen). Er komt dan zeg een meter bij en de lengte van de keukenruimte komt dan op 5m. Kastenwand blijft 3,60-4 m. In de meter komt dan ofwel een deur, of iets anders.
  woensdag 24 december 2025 @ 13:03:42 #16
459912 FlippingCoin
Weer zo'n kut millennial.
pi_219576809
I think that it’s extraordinarily important that we in computer science keep fun in computing
For all who deny the struggle, the triumphant overcome
Met zwijgen kruist men de duivel
  woensdag 24 december 2025 @ 13:07:39 #17
459912 FlippingCoin
Weer zo'n kut millennial.
pi_219576840
Waarom zou je het kookeiland zo centraal plaatsen eigenlijk ipv parallel aan je aanrecht wat meer naar rechts? En je keukentafel wat meer de woonkamer(?) in. Dan open je iig de zichtlijnen de tuin in meer vermoed ik.
I think that it’s extraordinarily important that we in computer science keep fun in computing
For all who deny the struggle, the triumphant overcome
Met zwijgen kruist men de duivel
pi_219576865
Dat is het meest logische inderdaad. Maar we willen de eettafel graag bij de ramen en de pui.
Vinden we hier geen mooie oplossing voor dan geven we eerder het kookeiland op dan dat we de tafel in het tussenstuk plaatsen, denk ik.

Fijn al jullie reacties! :)
  woensdag 24 december 2025 @ 13:22:36 #19
63594 Lienekien
Sunshower kisses...
pi_219576948
Werkruimte zou bij mij toch wel prioriteit hebben. Hoeveel aanrecht heb je zonder fornuis en wasbak, als je het kookeiland schrapt?
The love you take is equal to the love you make.
  woensdag 24 december 2025 @ 13:28:08 #20
459912 FlippingCoin
Weer zo'n kut millennial.
pi_219577001
Hm zelfs zonder kookeiland heb je vanuit het zitgedeelte geen vrij zicht op de achtertuin door de eettafel, dat zal niet heel veel schelen denk ik? Ik denk dat je hierin alleen de keuze hebt tussen de eettafel mooi bij de ramen daar, of zicht op je tuin. Ik zou dan niet zonder kookeiland gaan denk ik inderdaad vanwege de gebrekkige werkruimte die er dan overblijft.
I think that it’s extraordinarily important that we in computer science keep fun in computing
For all who deny the struggle, the triumphant overcome
Met zwijgen kruist men de duivel
pi_219577656
Een kookeiland is hoger dan een eettafel en beperkt daardoor meer zicht op de tuin. De prioriteit ligt ook niet bij het zicht op de tuin, maar nemen we mee in de keuze wel/geen/waar een eiland.
Werkruimte is wel een dingetje zonder eiland inderdaad. Dia zal max 180 worden.

Alle genoemde zaken had ik al bedacht. Ik hoopte op een briljante oplossing qua opstelling/alternatief voor een eiland waar ik zelf nog niet aan had gedacht :P
Ik zal nog eens bij een goede keukenzaak langsgaan om mee te laten denken in mogelijke opstellingen.
  woensdag 24 december 2025 @ 14:59:54 #22
63594 Lienekien
Sunshower kisses...
pi_219577698
Ik zou toch minstens twee 3D indelingen goed bekijken. En dan ook in je overwegingen meenemen hoe jij en de andere gezinsleden in/met de beschikbare ruimte moeten kunnen bewegen. Met bepekte werkbladruimte en alles in een deel aanrecht ‘gepropt’ ga je elkaar misschien wel heel erg in de weg lopen.
The love you take is equal to the love you make.
pi_219577825
3D is een goed idee. We zijn met 2, dus elkaar in de weg lopen zal meevallen.
  woensdag 24 december 2025 @ 16:44:31 #24
313769 ieniminimuis
Zo gek als een muis
pi_219578522
Hoe is de rest van de beneden verdieping? Ik vind die namelijk met al die ramen een ontzettend onlogische plek voor de keuken.
Trotste mama van Ambar
Het officiële liefje van @Monitor O+
pi_219581626
Met dat eiland zo dwars op de lange keukenwand krijg je een onlogische keuken indeling waarin heel veel onnodige meters heen en weer loopt. Er is een reden dat het eiland vrijwel altijd parallel aan de keukenwand geplaatst wordt en die reden is gebruiksgemak.

Ja, een huis mag mooi zijn naar jouw ideeën. Maar als de routing in de keuken niet klopt, dan zou ik mij daar elke dag aan ergeren. En een beetje degelijke keuken moet je toch wel een jaar of 20 mee doen, dus dat zijn dan héél veel ergernissen.
Voor mijn werk kom ik veel in Midden en hoog segment nieuwbouw- en gerenoveerde woningen en dat ziet er vaak allemaal prachtig uit, maar regelmatig kom ik daarbij ook keukens tegen waarvan ik denk "hoe heeft een degelijke en ervaren keukenontwerper dit zo kunnen verkopen", vanwege een volstrekt onlogische routing.

Van koelkast naar positie bij het werkblad en de spoelbak mag maximaal 2 a 3 stappen zijn. Van spoelbak naar kookplaat idem. Is het meer, dan zitten de functies te ver uit elkaar. Met het eiland een kwartslag gedraaid ten opzichte van de keukenwand is het vrijwel zeker meer dan 3 stappen tussen die twee delen van de keuken.

Niet voor niets is de hoekkeuken heel erg lang populair geweest. Met een bescheiden hoek-opstelling kunnen de kern-functies van de keuken heel eenvoudig binnen de "3-stappen" worden gepositioneerd en bevinden kookplaat en spoelbak zich vaak binnen anderhalve stap van elkaar.
abonnement Unibet Coolblue Bitvavo
Forum Opties
Forumhop:
Hop naar:
(afkorting, bv 'KLB')